石景山玉华玖章—高端改善

 
【中海·玉華玖章】
 
 
 
 
立序香山,书写当代山河的波澜壮阔。
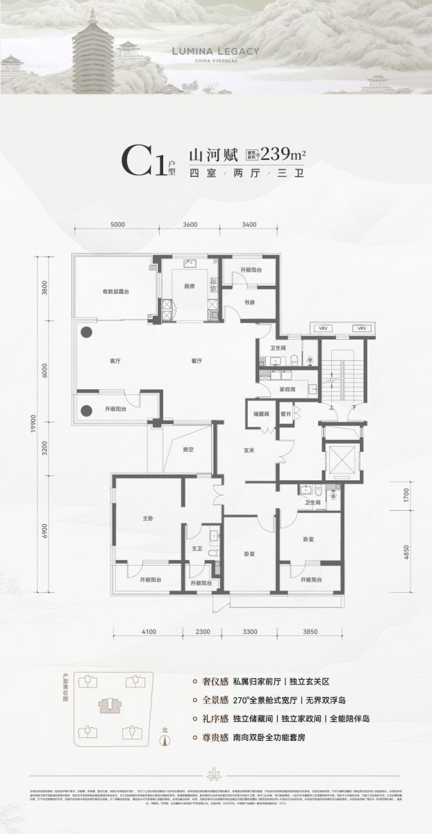
中海·玉華玖章以建面约157-239m2洋房观景舱,划定时代人居典范。
 
【基本概述】
『项目地址』:北京石景山八大处路
『开 发 商』:中海地产
『物业公司』:中海物业
『住宅信息』:5栋住宅楼,洋房
『容 积 率』 :约1.6(纯住宅部分)
『绿 地 率』 :30%
『装修标准』:精装
『产品信息』:建面约157-239m2洋房观景舱
『产权规划』:70年
 
国匠中海:源于世界500强企业中建集团,位列第14位成员企业(2024年),中国建筑是世界最大的工程承包商,代表着中国房建领域的最高水平。
豪宅专家:中海业务遍布港澳及内地90余个城市,及美国、英国、澳大利亚、新加坡等多个国家和地区,始终专注中高端精品开发,是享誉世界的国际豪宅专家。
?牌管家:中海物业,国家首批一级资质物业管理企业/香港政府执行部门“御用管家”/超过1/5世界500强公司指定物业服务商。除住宅、商业、酒店等项目外,中海物业还为驻港部队大楼,香港昂船洲海军基地、国家游泳中心(水立方)等提供高品质物业服务。
文脉西山:西山区域自古为“神京右臂”,追溯西山文脉,最早见于《辽史》。金章宗时期兴建“西山八院”,元明清更在此营建行宫、园林,赋予西山千年龙脉底蕴,绵亘至今。
人文香山:香山区域自辽金始为历代帝王所青睐,是皇家行宫择址首选。发展至清代,达到了以“三山五园”为代表的中国皇家园林顶峰。千百年来,古代帝王,文人雅士,近代领袖驻跸于此。
自然灵性:区域自然禀赋优越,香山公园、西山国家森林公园、八大处公园、北坞公园等城市公园密集分布,古树名木约5800+株,约占北京城区总数1/4;西山区域森林覆盖率约98.5%,平均湿度约80%,空气负氧离子最高达每立方厘米4000-5000个,是北京难以复制的宜居宝地。(数据来源,北京市园林绿化局)
天赋贵居:香山别墅区,因其少有的“皇家板块”景观,鼎立九大墅区之首。香山艺墅、西山美庐、香山壹号院等12万+豪宅同席,造就高端置业家庭的价值共识。
双区凝萃:项目鼎立海淀与石景山衔接之地,是满格人文生态,超配圈层休闲,优渥商业配套,极速交通脉线,优越教育资源的汇集地,形成全维高阶生活聚场。
生态氧居:项目毗邻约7万方公园,北侧临近公园绿境,面朝永定河引水渠,形成天然“玉带环腰、左府右园”的格局,于繁华处观山河城园,在自然中见本心,铺展城市隐奢的度假生活,
映山筑极:
①一层一视界-观景舱设计,山河园同窗辉映,层层皆是盛观;
②金石叠韵-甄选石材、铝板等材质与玻璃幕墙,呼应香山玉华独秀的壮美;
③熔融山园色-萃取山川之黛色与静宜园雅色,让建筑融于香山色谱
六境九景:园林设计灵感源于“静宜二十八景”之一玉华岫,得名于陶渊明《归去来兮辞》“云无心以出岫”,是一种“隐逸、闲适”生活观的表达。玉華玖章以“寻山/见山/游山/伴溪/听泉/穿林”六境,“栖云门庭/玉笏朦胧/玉岫游廊/玉华雅集/卧云听松/秋林蔚秀/璎珞清音/香雾织锦/翠微苔园”九景,完成一场跨越古今人文胜境对望。
山园逸界:以“寻山入园 院藏叠谷”为设计理念,打造超级立体游园体系,创造高浓度,沉浸式,体验感的高阶生活区。
 
玉華雅舍:圈层聚场包罗艺术长廊、落日书吧、轻氧运动、风雅会客等场景,致敬知贵家庭。
划代作品:中海始终为革新北京人居而著,玉華玖章以7核里程碑式设计,划代从端厅到三面环幕的洋房产品力。
玉华臻品:追溯自然系人居源点,推崇居家时的艺术美学,身心归属,重视生命体验感的提升,寻求人与空间更深层次的平衡关系,以玉石的山水纹理及木饰面肌理,表达内敛而不失气韵的视觉美学。臻萃唯宝、博世、唯斯特姆、恩仕、高仪等世界精奢品牌,不断探索山水奢宅的更多可能性。
时代好房子:中海凭借多年的开发经验和对客户的深入洞察,以4维高定系统,17大舒居场景,超百项技术与配置,营造是以人为本,与时俱进的经典著作,为西贵家庭敬献真正的“好房子”。
 
免责声明:本项目所有宣传资料(包括但不限于楼书、示意图、效果图、宣传文案、说明文件等宣传内容),仅为了让您对项目房屋有个初步的印象使用,而非实际的规划建设或建筑方案的展示,该等宣传资料属于要约邀请,不构成对您所购房屋实际效果的任何承诺,仅供您参考使用,不作为最终签署的《商品房买卖合同》的组成部分。本项目所有宣传资料内容不排除因政府相关规划、规定及开发商未能控制的原因而发生变化,本公司亦保留对所有宣传资料内容进行更新的权利,敬请留意最新资料。宣传资料无法详尽的展示项目内所有方向的外立面、单元门头布局、单元楼层情况、小区内外布置细节以及房屋等细节内容,因电子文件制作标准、印刷工艺标准的不同,以及实景拍摄时间、天气与日照情况的不同,所展示的效果与实际效果可能存在误差。为了保障您的权益,请您务必与开发商确认房屋的情况。本项目建设材料、材质、及做法等均以政府最终审批的建设方案及最终签署的《商品房买卖合同》约定的交付标准为准。本项目所有宣传材料面积均为建筑面积。本项目宣传推广案名为【中海玉華玖章】。备案名:玉章苑。开发商:北京鑫安兴业房地产开发有限公司。出街时间:2025年9月。中海地产全国统一服务热线监督电话:95112
 
 
 
 

相关推荐